4 макета для гостиной в 40 м2
Переезд в новую квартиру, новое решение для пространства или поиск оптимального решения для гостиной – есть четыре варианта для планировки гостиной, которыми я хочу поделиться.
Каждый план можно использовать для маленькой по размерам комнаты – прямоугольного пространства площадью 3 на 4 м. В одной и той же обстановке каждый план комнаты имеет отдельную конкретную цель, выберите наиболее подходящий для вас.
Уютный план небольшой квартирки
Традиционная мебельная планировка
Разработайте макет в традиционном формате. Мебель включает в себя диван-кровать соответствующего размера, мягкое кресло, кофейный столик, базовый столик и подставку для телевизора. Закрепите свое пространство большим ковриком, например, ковер размером 2,5 на 3 м. Если у вас есть телевизор, найдите лучшее со всех сторон место для просмотра и начните дизайн с размещения телевизора.
Затем поместите свой самый большой предмет мебели – как правило, это диван – прямо напротив телевизора. Настройте вспомогательную мебель, такую как стул и столы, вокруг дивана, как показано на рисунке.
Разработайте макет в традиционном формате
Макет с дополнительным местом для сидения
Вам нужен макет, который предоставляет вам дополнительные места для сидения? Эта конструкция делает поворот в традиционной компоновке, но дает вам дополнительное пространство для сидения, если вам нужно вместить людей. Вместо обычного дивана добавьте небольшой «L-образный» секционный диван в комнату вместе с двумя креслами.
Выберите кресла без подлокотников, чтобы дать дополнительное место без лишнего объема. У вас может не быть места для бокового/торцевого стола из-за большего секционного дивана, но вы можете компенсировать это, поместив большой журнальный столик, с которого каждое сиденье может получить доступ из любой точки зоны.
Вариант грамотной планировки квартиры
Обеденная + жилая зона
Во многих жилых комплексах нет отдельно столовой (большой кухни) и гостиной, а маленькая квартира разработана в виде студии. Поэтому вам может потребоваться планировать размещение столовой и гостиной в одной комнате. Этот макет поможет.
Начните с закрепления каждой отдельной зоны с помощью отдельного коврика. В макете эскиза я использовала круглый коврик и разместила круглый стол над ним, чтобы создать удобную круглую столовую. На другой стороне комнаты я добавила меньший по размерам прямоугольный коврик вместе с диваном подходящего размера, журнальным столиком и телевизором, который висит на стене.
СоветПодвешивание телевизора к стене – это максимальная экономия пространства. Если не получается это сделать, поместите телевизор на самый тонкий ТВ шкаф, который вы сможете найти, чтобы оптимизировать новое пространство.
Размещение столовой и гостиной в одной комнате
Открытая концепция, макет мебели для детей
Если у вас есть маленькие дети, то вам нужно максимально увеличить пространство, которое понадобится для них. Детские игрушки занимают столько места! Такой открытый концепт, безусловно, максимизирует потенциал вашей небольшой гостиной. Поместите секционный диван в углу комнаты (даже если он стоит напротив окна, подобного этому расположению), а затем поместите два небольших кресла в дальнюю сторону комнаты.
Телевизор здесь установлен на стене за двумя стульями. Для просмотра телевизора просто разверните кресла к нему. Когда ТВ не используется, кресла повернуты к секционному дивану и журнальному столику для оптимального общения.
Открытый концепт, максимизирует потенциал вашей небольшой гостиной
Эти четыре идеи размещения мебели помогают продвигать четыре задачи планирования пространства, в том числе традиционный формат, компоновку с дополнительным местом для сидения, комбинацию столовой и жилой площади и концепцию открытой комнаты. Выберите одну из них, которая соответствует целям вашей небольшой квартиры или поможет разработать лучшую мебельную планировку для пространства. Различий между дорогими и дешевыми проститутками немало, они выглядят по-разному, ведут себя и общаются, одеваются, выбирают разную выпивку. В секс индустрии Новосибирска есть градация не только по услугам, но и по ценам. На то, на что согласится дешевая дева, не пойдет випка. В Новосибирске с элитной проституткой сложнее договориться на анал или минет, если этого нет в списке услуг на странице ночной феи. Зато эстетическое удовольствие куда больше при общении с элитками, чем с девами из шалмана. Хоть один раз стоит посетить ухоженную чику без косяков по телу, милым личиком и манерами.
Планировка 1-й (однокомнатной) квартиры (210+ Фото). Стили от «А» до «Я» для хрущевок небольшого размера
Дизайн-проект
Создание дизайн-проекта является важной составляющей любого ремонта. Современная компьютерная программа имеет гораздо больше функций, чем возможность увидеть результат на картинке
Важно! Проект помогает полностью спланировать весь процесс и следить за его точным исполнением: рассчитать расходы, выбрать стилистику и подобрать все предметы мебели

Схема расположения предметов в квартире на 38 кв. м
Стоимость создания стильного дизайна полностью зависит от выбора материалов, ведь разница в цене на любой стройматериал может варьироваться весьма существенно. Также огромную роль играет объем ремонтных работ. Создание интерьера с нуля в новостройке с черновой отделкой требует максимально полного проекта. В то время как небольшие изменения в жилой квартире не станут глобальными и столь затратными.
Совет! Можно воспользоваться одной из программ, которые есть в интернете, и посмотреть 3D-модель проекта.

3D-модель позволяет полностью рассмотреть предлагаемый интерьер
Главные задачи, которые выполняет дизайн-проект, следующие:
Создание схем возведения или сноса перегородок, стен с обязательным анализом эргономики передвижения по комнатам.
Подробный замер всей квартиры для расчета материалов и составления плана последующих изменений.
Планирование размещения коммуникаций и проводки.
Работа с отделочными материалами, выбор стиля и цветовой гаммы.
Подбор мебели, расстановка всех предметов декора, выбор аксессуаров.
15




Совет! Для квартиры с небольшой площадью лучше выбирать минималистские стили – скандинавский, хай-тек или эклектику. Они отвечают всем требованиям современного дизайна и смотрятся достаточно стильно даже в небольших помещениях.
Оформление комнат в общем дизайне двухкомнатной квартиры 50 кв.м.
Обустройство комнат в дизайне квартиры площадью 50 кв. м и их функциональное назначение определяется в зависимости от проживающей семьи. Если это молодая пара с детьми – одна комната должна быть отведена под детскую. Если же в семье нет детей, здесь возможны разные варианты. В основном одна из комнат (особенно, если она проходная) отводится под гостиную, а вторая – под спальню. Рассмотрим некоторые варианты.
Дизайн интерьера гостиной двухкомнатной квартиры 50 кв.м.
В обустройстве гостиной должное внимание необходимо уделить мебели. Ее не должно быть слишком много, стоит остановиться на самых необходимых предметах мебели
Обязательно должен присутствовать диван, кресла или пуфы для комфортного отдыха, стол (лучше небольших размеров журнальный столик) и телевизор.
Если есть балкон, на нем можно организовать кофейную зону, оборудовав также небольшой столик со стульями. Цвета отделки стен и потолка для гостиной стоит подбирать из светлой палитры, но можно добавить различные яркие элементы, чтобы комната не казалась «скучной» и пустой (например, яркие подушки на диване или вставки на шторах).
На окна лучше повесить лёгкие, прозрачные шторы. При этом будет создаваться вид большого панорамного окна. Для большего уюта можно накрыть диван пледом, а на пол положить небольшой коврик, добавить в интерьер комнатных растений и напольный светильник.
Дизайн гостиной двухкомнатной квартиры 50 кв.м должен быть выдержан в одном стиле с остальными помещениями. Наличие декоративных украшений будет захламлять и без того небольшое пространство, все должно быть подобрано лаконично и функционально. Зачастую используется прием объединения гостиной с кухней с устранением перегородки, как показано на фото. В таком варианте интерьер делится на зоны, но, при этом, остается объединенным с помощью цветовых решений.
Детская комната в малогабаритной квартире
Детская – эта комната, где все должно быть продумано до мелочей: от самых необходимых предметов мебели до полной безопасности окружающей меблировки, подборки цветовой палитры и оформления окон. Зачастую дизайн детской – тематический, что представляет большой интерес для детей и, облегчает работу взрослым по подбору необходимых элементов.
Отделку помещения лучше оформить в спокойной цветовой гамме. Для этого подойдут оливковый, оранжевый, голубой, зеленый и бежевый оттенки, а яркие акценты лишь дополнят интерьер. Хорошим выбором станут фотообои с изображением кадров из любимых мультфильмов или сказок.
Дизайн двухкомнатной квартиры площадью 50 кв.м. предполагает, соответственно, небольшой метраж комнат. Следует учесть, что в детской должно быть достаточно пространства для игр. В небольших помещениях часто выручает мебель-трансформер (например, кровать, складывающаяся в шкаф). Желательно присутствие на полу мягкого коврового покрытия, так как дети в основном играют именно там.
Оформляя детскую, очень важно прислушаться к пожеланиям самого ребенка, учесть его темперамент и предпочтения, чтобы в последующем малыш с удовольствием проводил время в своем уголке
Дизайн двухкомнатной квартиры 50 кв.м: оформляем спальню
Очень часто в квартирах с небольшим метражом одна комната выполняет функции нескольких. Например: гостиная-спальня, спальня-гардероб и прочие. Так или иначе, необходимо постараться задействовать как можно меньше пространства и при этом вместить все необходимые детали интерьера.
Современные стили, пользующиеся большой популярностью (минимализм, модерн, хай-тек), хорошо подходят для организации небольших спален. Они предполагают наличие аккуратной мебели без дополнительного декора, использование светлых тонов при отделке стен и потолка. Пол также оформляется в сдержанных цветах: это может быть паркетная доска, ламинат или ковролин.
Особый уют комнате для отдыха придадут настенные бра с молочно-белыми плафонами. Любители роскоши могут оформить спальню в классическом стиле с оттенками персикового, розового, оливкового, светло-сиреневого цветов в сочетании с золотисто-серебряными узорами, лепниной и хрустальными люстрами.
Поскольку мы рассматриваем дизайн небольшой двухкомнатной квартиры 50 кв.м., то в спальне может размещаться и гардеробная, в роли которой выступит, например, шкаф-купе. Поскольку производители этого вида мебели предлагают довольно широкий спектр отделочных материалов для оформления фасадов, есть возможность подобрать наиболее гармонирующий с выбранным стилем вариант. Для современных направлений подойдет шкаф-купе с зеркальными дверцами, для стиля прованс – с жалюзийными, а классика предпочитает изящные узоры.
Интерьер функциональных зон
Для обеспечения максимального комфорта, следует создать продуманный и стильный дизайн каждого уголка в квартире.
Кухня
В малогабаритной кухне не следует устанавливать громоздкие гарнитуры темного цвета. Для экономии полезной площади лучше отказаться от обеденного стола грубой прямоугольной или квадратной формы. Его можно заменить компактной овальной моделью с округлыми стульями, барной стойкой или переоборудовать под него подоконник.
Визуально увеличить комнату поможет светлая отделка потолка и стен. Для напольного покрытия подойдут древесные оттенки. Такой монотонный дизайн отлично дополнят яркие акценты, например, в виде кухонного фартука в ярком исполнении. Окно выгодно украсят легкие полупрозрачные занавеси.
На фото дизайн совмещенной кухни-гостиной в интерьере евродвушки 36 кв. м.
Гостиная и зона отдыха
В гостиной, имеющей средние габариты, уместно применение универсальных белых, бежевых или серых оттенков в комбинации с другими тонами. В качестве напольного покрытия используют ламинатную доску или паркет, придающий интерьеру домашнего уюта. Стены облицовывают обоями или другим однотонным покрытием со слабовыраженным рисунком.
Для обустройства зала выбирают только самую необходимую меблировку, в виде дивана, журнального столика и различных систем хранения. Рациональное решение представляют собой угловые конструкции, эффективно использующие неактивное пространство и сохраняющие место для перемещения в комнате.
На фото зона отдыха с компактным диванчиком и журнальным столиком в светлых тонах, в квартире двушке 36 кв. м.
Детская
Для более эргономичного дизайна детскую оборудуют с помощью кровати-чердака с письменным столом на нижнем ярусе. Семье с двумя детьми подойдет установка двухъярусной конструкции. Сохранить полезные квадратные метры помогут кровати, оснащенные выдвижными ящиками и купейный шкаф, вмонтированный в нишу.
В однокомнатной квартире, уголок ребенка, лучше отделить облегченными перегородками или декоративными занавесками, для создания качественного вентилирования пространства. Данный участок следует оборудовать правильным освещением, в виде настенных бра и настольных светильников для рабочего места, подсветки или неяркого ночника для спальной зоны.
На фото дизайн малогабаритной детской для девочки в двушке 36 квадратов.
Спальня
В дизайне маленькой спальни будет особенна уместна встроенная мебель. Довольно интересной идеей для размещения вещей станут открытые стойки или вешалки под потолком. При наличии выдвижного или подъемного механизма кровати, систему хранения оборудуют внутри нее. В изголовье иногда размещают полки и ящики.
Отличным решением для отдельно выделенной спальной зоны в однушке или студии, станет подиум или ниша, в которую можно полностью или частично установить кровать. Для отделения пространства, углубление оформляют занавесками или раздвижными перегородками.
Рабочее место
Практичным и эргономичным решением для рабочего места, является его расположение в качестве продолжения подоконника или обустройство на балконе. Такой вариант не только способствует экономии площади и отличается стильным видом, но и предоставляет комфортные условия для работы. В вечернее время, данный участок должен иметь качественное освещение, в этом помогут точечные светильники и настольная лампа.
Ванная и туалет
В совмещенном санузле, для освобождения дополнительной площади, ванну с легкостью заменит душевая кабинка. Таким образом получится разместить в комнате стиральную машину или другие нужные предметы. Для максимальной экономии пространства, лучше использовать высокие узкие шкафы, полочки, в отделке применять светлую цветовую гамму, стеклянные и зеркальные поверхности.
На фото интерьер совмещенного санузла, выполненный бело-бежевых тонах в дизайне квартиры 36 кв.
Планировки
В настоящее время существуют не только типовые решения, но и нестандартные планировочные подходы, к которым относятся круговая, угловая квартира или разновидность жилья, как чешка, бабочка или распашонка.
Самым главным аспектом в дизайне квартиры, является создание грамотного проекта. Планировка может не всегда удовлетворять потребности хозяев, поэтому в данном случае, ее часто подвергают радикальному видоизменению.
Намного проще распределить пространство на отдельные функциональные участки в жилье с открытой планировкой. Простыми в ремонте и переносе стен, являются сталинки в кирпичном доме, более сложной перепланировкой отличаются хрущевки и брежневки в панельном доме с монолитными железобетонными стенами.
Однокомнатная квартира 50 кв. м.
Для правильного выбора наиболее благоприятного оформительского способа, в первую очередь учитывают все особенности однушки, ее специфику планировки, наличие ниш, выступов, размещение окон и прочее.
Данный метраж в 50 квадратов, является довольно солидным для однокомнатного жилья. Такое пространство можно оборудовать отдельным уголком в виде тихой и уютной спальни, расположенной в самом дальнем углу. Для зонирования лучше использовать облегченные или прозрачные перегородки, вместо сплошной стены, забирающей полезную площадь.
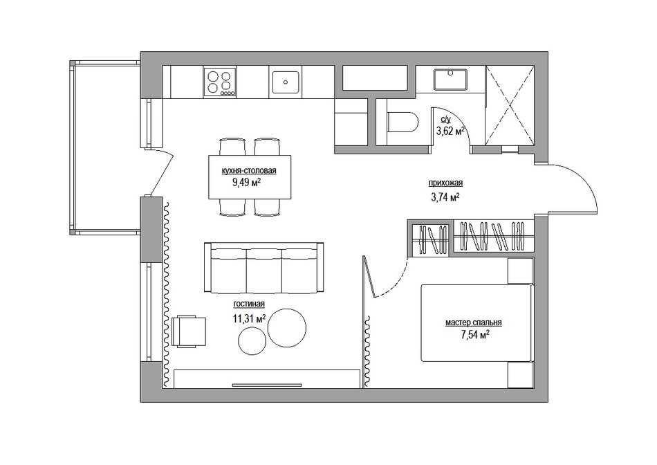
На фото дизайн однокомнатной квартиры 50 квадратов с гостиной, объединенной с кухней.
Подобная просторная и комфортная квартира 50 кв., прекрасно подойдет одному человеку или молодой семейной паре. Для дизайна однушки можно подобрать самое разнообразное интерьерное решение, например, расположить спальное место в нише, а остальную площадь задействовать под совмещенную кухню-гостиную, таким образом получится добиться невероятно практичного оформления.
Двухкомнатная квартира 50 м2
В данной квартире для правильного распределения площади и функционального предназначения помещений, следует обратить внимание на то, кто в дальнейшем будет проживать в двушке. Например, для семьи с ребенком, обязательно нужно обустроить детскую комнату, а для одного взрослого человека, будет уместна планировка с объединенной кухней-гостиной и отдельной спальней.
На фото совмещенная кухня-гостиная в дизайне евродвушки 50 квадратных метров.
В большинстве улучшенных квартир евродвушек, имеется балкон или лоджия, становящаяся прекрасным дополнительным местом, которое можно объединять с комнатой для оборудования рабочего кабинета или зоны отдыха.
Жилое пространство с угловой планировкой, может иметь не менее оригинальный дизайн. Угловое помещение с двумя оконными проемами, с легкостью разделяется на два участка с использованием различных предметов мебели или перегородок.
Квартира-студия площадью 50 метров
Для тех кто предпочитает простор и открытое пространство, квартира-студия станет самым оптимальным вариантом для проживания. Такое казалось бы, не слишком большое помещение, с помощью различных перегородок, получается визуально преобразовать в довольно габаритную жилую площадь.
Одним из самых популярных планировочных решений, считается разграничение студии на спальную зону и гостевую с кухней, столовой, гардеробом и санузлом. Для отделения места для сна, в основном используют специальные перегородки, ширмы или арки.
Квартиру-студию лучше обставлять более светлой компактной мебелью или выбирать трансформирующиеся конструкции. В качестве зонирования, также можно применить разные элементы мебели, в виде стеллажа, шкафа или барной стойки, а также разделить пространство с помощью подсветки, контрастной отделки, разноуровневого пола или многоуровневого потолка.
Благодаря зонированию удается добиться более практичного и продуманного дизайна, рассчитанного для комфортного проживания двух человек.
На фото дизайн квартиры-студии 50 квадратов, выполненный в современной стилистике.
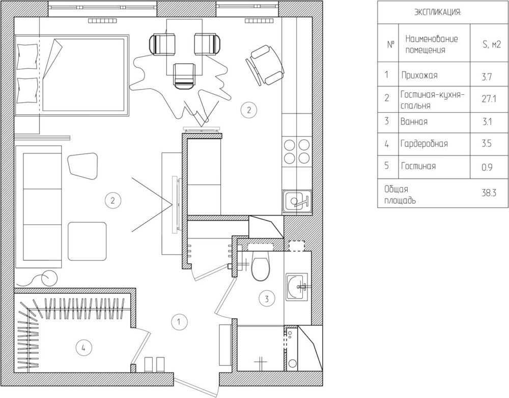
Планировка комнат в квартире и студии 38 кв. м.
Стандартная планировка однокомнатной квартиры 38 кв. м. предполагает проведение ремонта, что требует составления реального проекта. Все помещения должны быть оформлены в едином стиле, классика будет уместной в любой ситуации.

Окраска стен в контрастные цвета – один из самых простых приемов зонирования общей комнаты
Гостиная
Большое количество функциональных зон в гостиной может привести к тому, что помещение будет смотреться нагроможденным. Оптимальным вариантом оформления в данном случае считается скандинавский стиль. В данном случае следует отдавать предпочтение нейтральным оттенкам, дереву, мебели в квартиры должно быть минимум. Светлые тона создают в квартире ощущение простора, эффект усиливается за счет глянцевых поверхностей. Увеличить объем помогут растительные орнаменты, поэтому от них следует отказаться.

Светлая гостиная в скандинавском стиле с большими окнами без занавесок
В гостиной рекомендуется подготовить зону для сна, поставить кровать. При зонировании рекомендуется использовать зеркальные полустенки, телевизионные панели, прозрачные стены с ширмами, перегородки.
Дополнительное место для хранения вещей можно получить, переоборудовав подоконник в удобный диванчик с ящиками внутри
Кухня
Средняя площадь кухни в квартире достигает 5-8 кв. м. При проживании семьи рекомендуется использовать круглый стол, который может вместить больше людей. Сэкономить место помогут также раскладной или объединенный с подоконником стол. Балкон также может быть переоборудован под продолжение кухни.
Недостаток места в маленькой кухне можно исправить, переделав подоконник в рабочую поверхность
Немного тепла на 33 кв.м. в Сочи
Главная особенность проекта Катерины Кузнецовой – смелый и яркий оранжевый акцентный цвет. Благодаря ему минималистичный белый интерьер мгновенно ожил, но при этом удалось сохранить ощущение пространства и света. Вместо стены зоны отделяет полупрозрачная стеклянная перегородка из блоков.
Спальню удалось вынести в отдельный угол, спрятанный от посторонних глаз. Высокая стойка-столешница с одной стороны продолжает серию настенных полок, а с другой – отзеркаливает и отделяет рабочую зону. Классический красный ковер с узорами в этом интерьере стал настоящей изюминкой, а не пережитком прошлого.
Зонирование
Если студия однокомнатная, то обязательно встает вопрос зонирования пространства. Необходимо будет совместить в одной комнате как минимум кухню и спальню, как максимум гостиную и рабочий кабинет. Все зависит от вашего образа жизни, потребностей, количества проживающих в квартире людей.
Зона кухни
Застройщик обычно сам определяет, где будет находиться кухонный уголок, устанавливает там раковину, а под потолком скорее всего будет вытяжка. Вопрос, как отделить визуально кухню от остального пространства. Идеальный вариант — барная стойка. Она будет и компактным столом, и перегородкой. Если есть теплый балкон или лоджия, то можно объединить их с кухней, а из подоконника сделать стойку.
Белая стойка визуально расширяет пространство зоны гостиной
Можно пойти дальше и представить, что кухня — это уютная мини кофейня в доме
Зона гостиной
Гостиная предполагает наличие дивана или кресел, журнального столика, телевизора. Все эти предметы могут послужить инструментами для зонирования студии. Достаточно развернуть диван спинкой к остальному пространству: сидя на нем в поле зрения не будет попадать кухня и кровать, что создаст ощущение, что вы находитесь в отдельной полноценной комнате.
Ковры за счет разного цвета тоже могут зонировать комнату
Удобнее располагать телевизор так, чтобы можно было смотреть из всех зон студии
Зона спальни
Не стоит отказываться от полноценной кровати, всегда есть варианты, как можно вписать ее в метраж студии. Если повезло с высокими потолками, то можно сделать второй уровень в комнате для спального места. Но будьте готовы, что придется постоянно подниматься и спускаться. Также вопрос помогут решить текстильные перегородки, полог, или стеллажи для зонирования
Если места совсем мало, то стоит обратить внимание на откидные варианты
Второй этаж внутри комнаты смотрится стильно
Подобные дизайнерские конструкции ограничат пространство кровати
Особенности оформления интерьера и планировки квартиры площадью 38 кв. м.
При составлении проекта дизайна квартир любой площади рекомендуется использовать зонирование пространства. Без него обойтись, если в квартире проживает семья. Зонирование в большинстве случае вносит условный характер, при его проведении применяются цветовые решения, производится расстановка мебели. Необходимость в использовании дополнительных перегородок отсутствует. Основная задача заключается в расширении пространства. Такой подход обеспечивает максимальное расширение пространства.

Разделить комнату на функциональные зоны можно с помощью разного уровня пола, например, вынести на подиум спальное ложе или рабочее место
При зонировании обязательно учитываются интересы и увлечения хозяина квартиры или членов его семьи.
При составлении проекта квартиры 38 могут быть проведены перепланировки. В одной комнате можно совместить гостиную и спальню, лоджия может быть утеплена, переоборудована под кабинет или любое другое функциональное помещение.

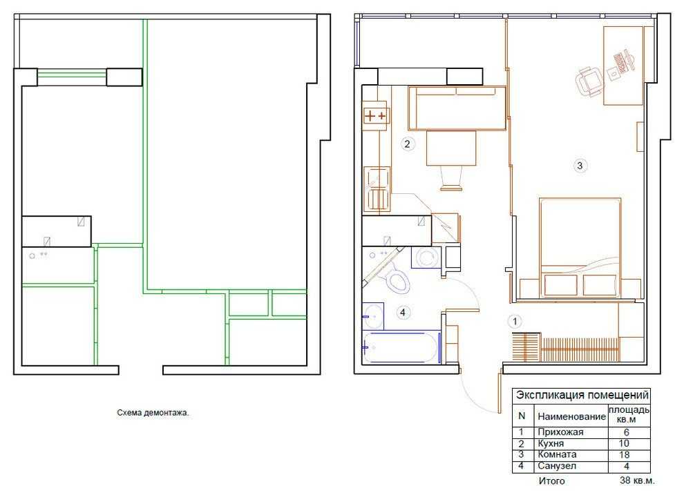
Проект перепланировки однокомнатной квартиры, в которой выделены зоны – гостиная, кухня-столовая и полноценная спальня с рабочим кабинетом
Зонирование пространства
При планировке квартиры площадью 35 кв. м обязательно выделяется зона гостиной, спальня и кухня. Если в семье есть ребенок, необходимо обустроить детский уголок.
Если в квартире есть лоджия, ее стены утепляются, переносится радиатор и новые метры используются как дополнительное пространство под учебную или рабочую зону. Если в квартире балкон, его можно оборудовать полками. Кладовые в «хрущевках» выделяются под гардероб, что позволяет отказаться от большого шкафа.
Вам будет интересно: Тонкости при планировке и проектировании дома 6 на 8 с мансардой: выбор материала, примеры типовых проектов
Чтобы гостиная отделялась от спальной зоны, устанавливается перегородка. Наиболее дешевый вариант – это текстильная ширма. Она создает уют, не пропускает свет, легко стирается. В месте, где будет стоять кровать можно постелить ковролин или установить подиум.
При перепланировке малогабаритки можно сделать квартиру-студию. Зона для приема гостей и отдыха отделяется от кухни передвижной перегородкой. Стеклянная, витражная и зеркальная ширма будет красиво смотреться, зрительно увеличивать пространство.Устанавливается барная стойка, которая делит площадь и используется в качестве обеденного стола.
Для экономии места на кухне вместо подоконника устанавливается широкая столешница. Однако за таким столом неудобно обедать семье из 3-4 человек и принимать гостей.
На фото видна грамотная планировка однокомнатной квартиры площадью 35 кв. м. На каждом примере можно увидеть 3-4 основных зоны, которые выделяются с помощью отделочных материалов: гипсокартонных, стеклянных перегородок, тканевых ширм.











![Дизайн квартиры 36 кв. м. [60+ фото], планировки 1,2-комнатных, студий](http://spec-mach.ru/wp-content/uploads/f/4/d/f4d8edda0f11e949b474163188a5bc1d.jpeg)














![Дизайн квартиры 36 кв. м. [60+ фото], планировки 1,2-комнатных, студий](http://spec-mach.ru/wp-content/uploads/1/6/9/169482614e956633c8ec3d38d04fb85f.jpeg)



![Дизайн квартиры 35 кв. м. [60+ фото] планировки 1-комнатных, студий и евродвушек](http://spec-mach.ru/wp-content/uploads/7/2/4/724beaf2787239a432e637c59c7fecc4.jpeg)



![Дизайн квартиры 38 кв. м. [70+ фото], планировки 1-комнатных](http://spec-mach.ru/wp-content/uploads/f/8/d/f8d6bfddcea169153c2a5a95d53465b3.jpeg)


![Дизайн квартиры 38 кв. м. [70+ фото], планировки 1-комнатных](http://spec-mach.ru/wp-content/uploads/3/e/e/3eeef469675dd545610edc1eb4852504.jpeg)









![Дизайн квартиры 38 кв. м. [70+ фото], планировки 1-комнатных](http://spec-mach.ru/wp-content/uploads/0/9/a/09aa3245ea07d64b7632255eb2ebf6aa.jpeg)


